Domestic Alterations & Extensions
One of the aspects of architecture that I deal with alterations and extension residential properties.
Many people these days are right in thinking that enlarging their current home can be more cost effective than moving, to gain the extra space they need. In many cases, when people are considering moving home it is often due to lack of space in their existing home - whether this they need an additional bedroom or more living space - a good deal of space can be added to most houses through either permitted development or planning permission, or sometimes even by reconfiguring the existing building.
​
If you are considering having some work done to your home, I am able to advise suitable options for a range of budgets which can give you an idea of the alterations which could help you get the space you need. From an initial discussion, I am able to produce initial sketch options, followed by measured existing and proposed floor plans and elevations for either a planning or permitted development application (whichever is required).
​
When permission is approved, I am able to put together a set of detailed drawings for building regulations approval, along with drawings which your builder can use to work from.
​
For some examples of recent projects, see the below images:
Sketch Proposals
This project in Chandlers Ford was for a client who was looking for options on how they could enlarge their current house.
Their requirement was for an additional bedroom with en-suite and dressing room to be the master. They also wanted to reconfigure their existing ground floor layout to work better for them.
​
The sketches here gave them a good idea of what they could achieve for when they are ready move the project forward.







Extension & Loft Conversion
This project in Salisbury Green was for a client who has bought their first home and was looking for options to enlarge from a 2-bed to a more "future-proof" size.
​
From initial sketches through to planning drawings and a planning application submission, this one met the client's brief by adding 2 large bedrooms in the roof space, along with a rear extension to provide a larger kitchen and dining space.
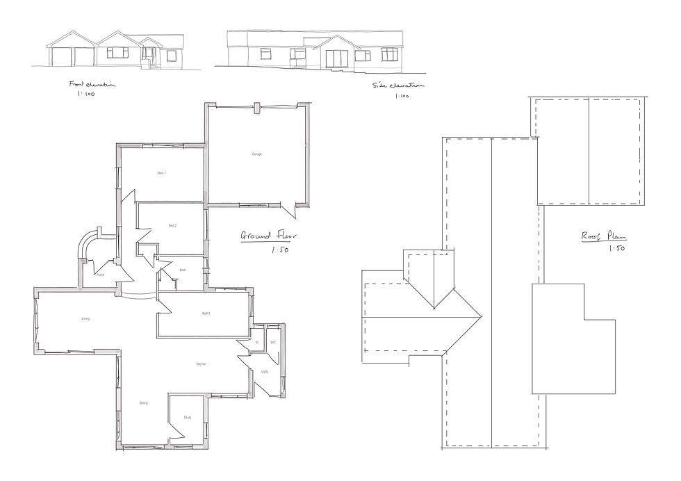
Construction Drawings
This project in Farnham was for a client who'd had an issue with their previous designer - following an issue with the forms which were submitted for planning the client was facing a large bill for CIL, due to a technicality.
​
To get around this, I assisted with producing an alternative proposal for a Section 73 application.
The proposals are for an additional floor over the existing bungalow, with a large rear extension.
With the work already underway, the images to the side are a few of the sheets from the pack of construction drawings:




